VF Invest Agence
Télécharger la fiche

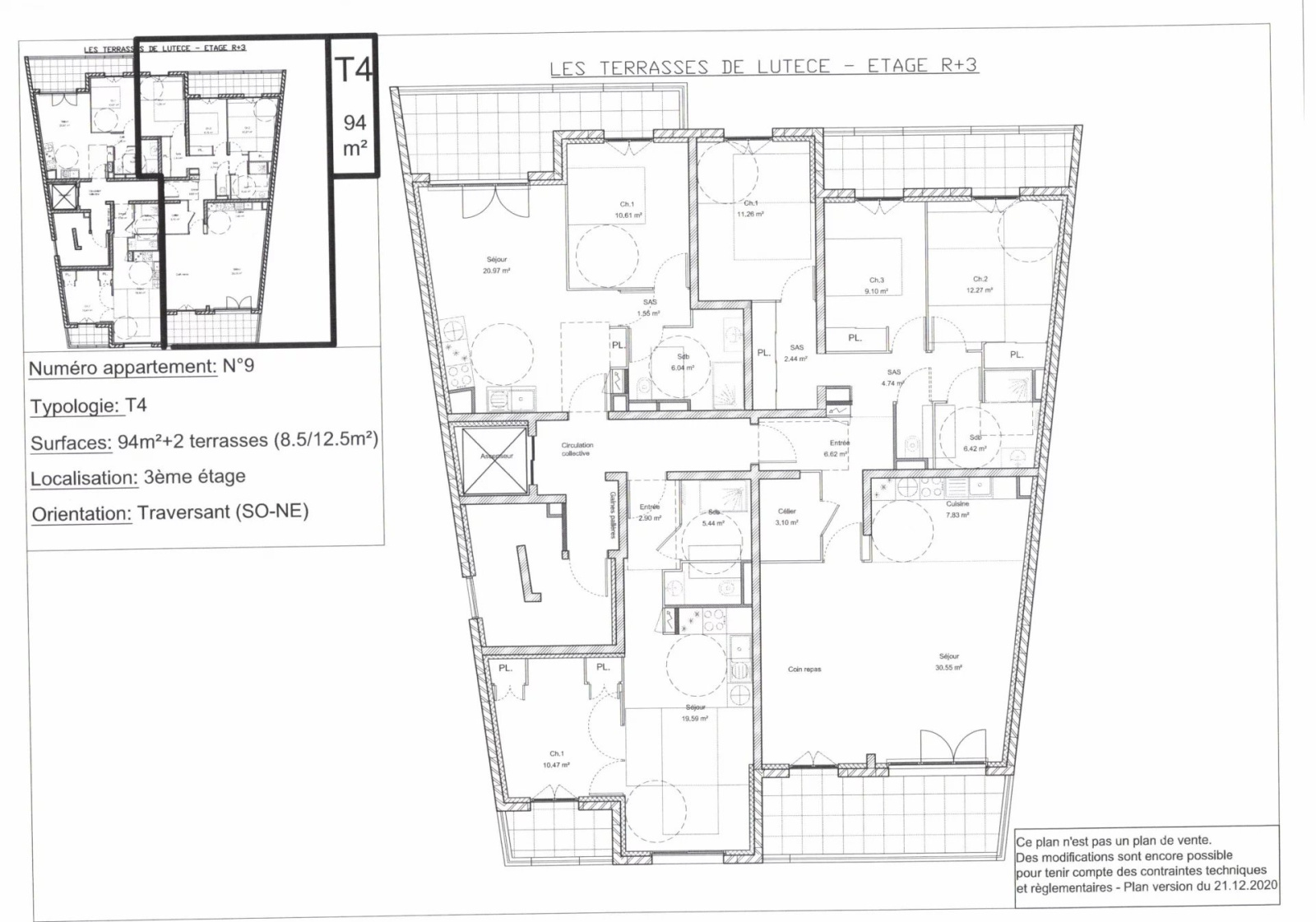
Appartement 4 pièce(s) 3 chambre(s) 94 m²

Évreux (27000)
286 000 € Référence 4716556

A propos de ce bien

Appartement T4 au 3eme étage (4ème niveau), dans immeuble de 12 appartements de type t2 au t5 situé plein centre ville . Il comprend entrée, séjour avec espace cuisine et cellier séparé donnant sur terrasse de 12 m2, dégagement, salle de douches, wc, 3 chambres dont 2 donnant sur balcon commun de 8,5 m2 Disponible 3 éme trimestre 2025. Toutes les informations sont à votre disposition en agence au 3Bd de la buffardière 27000 EVREUX. Les informations sur les risques auxquels ce bien est exposé sont disponibles sur le site Géorisques http://georisques.gouv.fr

Caractéristiques de ce bien

  • Surface 94 m²
  • 3 chambre(s)
  • 1 salle(s) d'eau
  • construit en 2024
  • Chauffage individuel : radiateur (electrique)
  • 6 niveau(x)
  • 3ème étage
  • balcon
  • terrasse

Diagnostics énergétiques

Consommation énergétique
A B C D E F G
Emission de gaz à effet de serre
A B C D E F G
DPE ANCIENNE VERSION

Informations financières

Prix de vente 286 000 € Les honoraires d'agence seront intégralement à la charge du vendeur

Informations de copropriété

Copropriété Oui
Lot n° 9
Nombre de lots 411

Calcul des mensualités

* Champs obligatoires